Casă pe structură metalică 151 mp – Model Neria - P + 1 | Elitestruct
De la: 59 980€ fără TVA
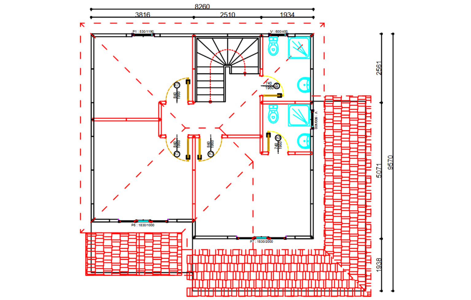
Suprafețe utile pe încăperi:
- Salon generos de 23 mp la parter cu antre de 11 mp, cu lumină naturală din belșug – ideal pentru relaxare, socializare sau petrecerea timpului în familie
- 4 dormitoare la etaj (14 mp dormitor principal, 16 mp, 14 mp și 12 mp) – oferă intimitate și funcționalitate pentru întreaga familie, inclusiv spațiu pentru birou sau cameră de oaspeți
- Bucătărie separată de 14 mp la parter cu cămară de 3 mp, bine organizată – perfectă pentru gătit fără compromisuri și depozitare eficientă
- 2 băi complet utilate (6 mp la parter și 4 mp la etaj) și hol generos de legătură (10 mp), care conectează fluent toate spațiile
- Terasă exterioară generoasă de 21 mp la parter și balcon de 6 mp la etaj, ideale pentru cafeaua de dimineață, citit sau momente de relaxare în aer liber
Spațiu optim, design modern și construcție durabilă pentru familia ta
Text principal: Modelul S16 este o casă prefabricată pe structură metalică, cu o suprafață utilă de 151 mp, proiectată inteligent pentru a îmbina confortul, funcționalitatea și estetica într-un spațiu bine echilibrat. Este ideală pentru familii cu 2 sau 3 copii, pentru cupluri care își doresc o locuință durabilă și eficientă energetic, dar și pentru cei care vor o casă modernă, complet echipată și rapid de construit.
*** Poate fi personalizată în funcție de nevoile familiei
Tehnologie UST
(Structură metalică ușoară), cu rezistență ridicată la cutremure și uzură în timp
Pereți exteriori și acoperiș
Cu panouri sandwich și tâmplărie PVC cu geam tripan
Izolație
Termică și fonică superioară, ideală pentru orice anotimp
Livrare
Rapidă și montaj în doar 45 - 50 zile lucrătoare

